El nuevo Complejo de Fuego en Colina comenzó su construcción con la colocación de la primera piedra en el Campo de Entrenamiento “Comandante Máximo Humbser Zumarán”, consolidándose como un módulo pionero en Sudamérica y un avance relevante para la comuna.
La ceremonia contó con la presencia de diversas autoridades, entre ellas el superintendente del Cuerpo de Bomberos de Santiago, Álvaro Lara Alba; el presidente regional metropolitano de la Junta Nacional de Cuerpos de Bomberos de Chile, Roberto Valenzuela Monzón; la directora ejecutiva de la Organización de Bomberos Americanos (OBA), Andrea Rojas Van Dyck; el rector de la Escuela de Bomberos de Santiago, Marco Antonio Cumsille Eltit; el comandante Giorgio Tromben y el Delegado Provincial de Chacabuco, Cristóbal Saavedra.
El proyecto, impulsado por el Cuerpo de Bomberos de Santiago (CBS), busca fortalecer la capacitación de sus voluntarios mediante escenarios más realistas y exigentes. Su desarrollo se remonta a 2020, cuando se detectó la necesidad de contar con un espacio especializado para enfrentar incendios estructurales con mayor complejidad.
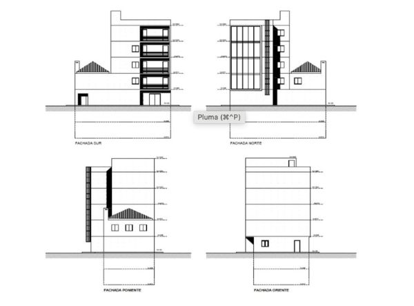
El complejo contempla dos módulos principales. El primero será una casa habitación equipada con cocina, comedor y dormitorios, diseñada para recrear emergencias en entornos residenciales.
El segundo corresponde a un edificio de cinco pisos con dos subterráneos, donde se podrán simular incendios en contextos comerciales e industriales.
En total, la obra abarcará cerca de 1.000 metros cuadrados y considera una inversión superior a un millón de dólares, financiada gracias al aporte de más de 100 mil socios cooperadores.

Foto: cedida a Chicureo Hoy
Impacto para Colina y la formación bomberil
Desde el CBS destacan que esta infraestructura no solo beneficiará a sus más de 2.500 voluntarios, sino que también podrá ser utilizada por otros cuerpos de bomberos, posicionando a Colina como un punto clave para la formación a nivel nacional.
El superintendente Álvaro Lara Alba afirmó: “Esta primera piedra representa una convicción institucional: el servicio a la comunidad exige preparación permanente”.
Además, el nuevo complejo incorporará tecnologías más sustentables, como el uso de gas licuado y la reutilización de cerca del 75% del agua utilizada en los ejercicios.






